De Speyk 2.0
- Opdrachtgever MM projecten
- Architect Michiel & Jasper
- Jaar 2020
- Programma
- Status Uitvoering
- Schaal +1250
- Constructeur Pieters Bouwtechniek
De locatie Van Speykstraat 149 in Rotterdam bood een bijzondere kans voor herontwikkeling. De opdrachtgever wilde het bestaande gebouw transformeren tot woningen en vroeg MCK architectuur om te onderzoeken hoe dit binnen de stedelijke context het beste kon worden ingepast. Al snel werd duidelijk dat het project meer potentie had dan alleen het toevoegen van woningen: het kon een impuls geven aan de leefkwaliteit van de hele omgeving.

Ontwerp en inpassing
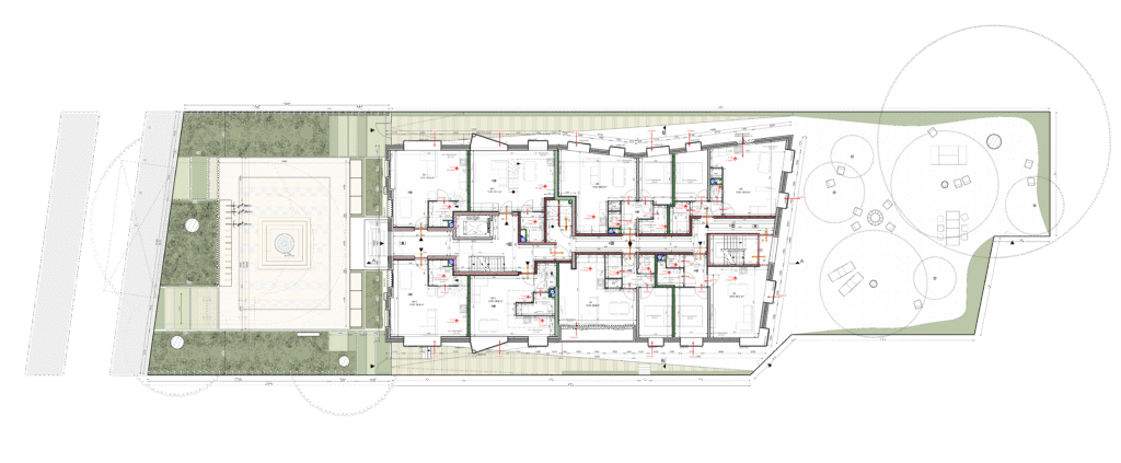
MCK architectuur ontwierp de transformatie tot 34 stadsappartementen die aansluiten bij het stedelijke karakter van de wijk. De plattegronden zijn efficiënt opgezet en maken optimaal gebruik van daglicht. Ook de gevels zijn herzien zodat het gebouw opnieuw aansluiting vindt bij de menselijke schaal van de straat.

Een belangrijk onderdeel van het ontwerp was de inrichting van de openbare ruimte rondom het gebouw. MCK ontwierp deze als een uitnodigende verblijfsplek die de buitenruimte meer betrekt bij het wonen. Door vergroening, zitplekken en een zorgvuldige overgang tussen privé en openbaar is een aangename stedelijke ruimte ontstaan die uitnodigt tot gebruik en ontmoeting.

Meerwaarde
Van Speykstraat 149 laat zien hoe een bestaand gebouw met visie en zorg kan worden getransformeerd tot een eigentijdse woonplek. De combinatie van architectonische kwaliteit, aandacht voor de omgeving en een goed afgestemde buitenruimte maakt dit project tot een waardevolle toevoeging aan de stad.